Volver al resumen

Kuipers

Kuipers Woudsend BV T6.03

Assortment
Tanques
Categoría
Tanques de almacenamiento
Número de stock
STN16029
Tipo
T6.03
Año de construcción
2017
Capacidad
40.000 liters
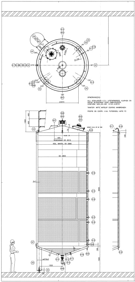
Vertical double jacketed insulated cream storage and cooling tank. Nominal volume: 40.000 liter. Design pressure: 0-0,49 bar (tank) and 4 bar (jacket). Design temperature: -10°C - 99°C (tank and jackets). Top side driven Jongia propellor agitator (centered), motor: 1,1 kW -speed: 29 rpm. Insulated, side and bottom. With 3 x cooling sections; 1 x bottom 3,6 m2 and 3 x side 10,7m2 (total 35,7 m2). Previously used for cream storage and cooling via glycol from 8°C -> 4°C in 4 hours. Product outlet pipes 2,5" with 2x pneumatic tank outlet valves. Outlet height ca. 71 cm. With cleanable sample valve. In botom 3 x sensor: temperature, pressure and level. In top level sensor, sightglass with lamp and breather. 4 CIP spray bowls (1 in top, 3 in side). Manhole in top, round Ø ca. 50 cm. 4 Adjustable feet. Inside dimensions of tank: Ø 265 cm and cylindrical heigth: 650 cm. With alu cage ladder mounted on side. Documentation inculding drawings available. Total dimensions: 295x295x920 cm - weight: 4.600 kg.

¿Puede LDFE ayudarme con la instalación?

Sí, si lo desea nuestros mecánicos pueden instalar el equipo en sus instalaciones. Además, podemos ofrecer asistencia a distancia dando instrucciones por videollamada o control remoto (cuando esté instalado).

¿Qué significan las condiciones "reacondicionado", "buen funcionamiento" y "tal cual"?

Podemos ofrecer nuestra maquinaria en tres condiciones: "reacondicionada", "buen funcionamiento" y "tal cual". "Reacondicionado" se refiere a una revisión completa de una máquina usada para darle una segunda vida. Nuestro procedimiento estándar a la hora de renovar completamente una máquina usada es:

  • Desmontaje hasta el marco: granallado y pulverización de componentes de acero
  • Desgaste de todos los componentes: sustitución de rodamientos, casquillos y juntas.
  • Reemplazo de componentes dañados o desgastados.
  • Nuevos sistemas de cableado y control (últimas actualizaciones)
  • garantía de 6 meses
  • Suministro de repuestos garantizado durante 5 años.
  • Opcional: supervisión de la puesta en marcha y formación del operador.
  • Opcional: marcado CE
  • Opcional: modificaciones personalizadas

Comprar una máquina que funcione bien es una solución más económica. En esta condición, no revisamos completamente la máquina, pero hacemos los trabajos necesarios para que la máquina esté en condiciones de funcionar. La máquina se prueba en nuestro taller y los componentes sólo se reemplazan si es necesario. Este precio siempre está sujeto a condiciones, ya que en ocasiones durante las pruebas se hace evidente que hay un fallo costoso. Si este es el caso, el comprador recibe una cotización de los costos adicionales y también tiene la opción de cancelar la compra.

Las máquinas casi siempre se venden en fábrica y se pueden utilizar en las mismas condiciones en las que las compramos: "tal cual". Sin embargo, la máquina no ha sido inspeccionada por nosotros y no hay garantía de su estado actual. Siempre recomendamos que una máquina sea inspeccionada antes de comprarla y solo comprarla "tal cual" si tiene un conocimiento profundo de las máquinas. Siempre podremos informarle si compramos la máquina en condiciones de funcionamiento o si ya estaba fuera de servicio. La documentación no siempre está incluida y solo se puede proporcionar si estaba presente en el momento de la compra.

¿Puedo confiar en las máquinas usadas?

Trabajamos con máquinas usadas desde 1996 desde el mismo lugar donde iniciamos el negocio y seguimos creciendo cada año. Si surge un (pequeño) problema, también intentamos encontrar una solución con nuestros clientes. Siempre hemos sido un socio fiable gracias a nuestra experiencia con maquinaria usada.

¿Puede LDFE ofrecer también máquinas nuevas?

Sí, en particular equipos de proceso como pasteurizadores, equipos de estandarización, unidades CIP, unidades de queso UHT, etc. También es posible una forma híbrida de nueva y reconstrucción.

¡Contáctenos!

Contactgegevens

+31(0)348-558080
info@lekkerkerker.nl

Dirección

Handelsweg 4
3411 NZ Lopik, The Netherlands

Horario de apertura

Lunes a jueves: 07.30 - 17.00 UTC+1
Vie: 07.30 - 16.30 UTC+1